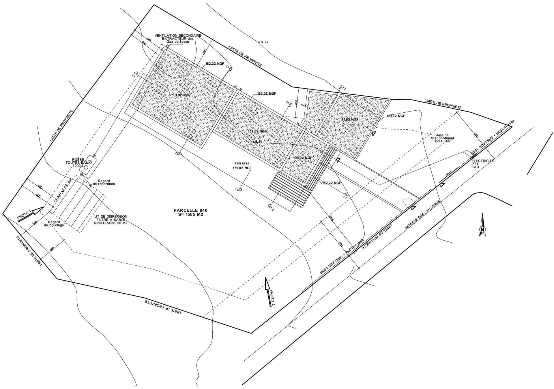
Glissée entre les pins, la maison s’étire horizontalement pour préserver le paysage et dialoguer avec la forêt de chêne vert existante.
Les différents volumes composent une écriture sobre et chaleureuse, rythmée par de larges ouvertures cadrant la lumière filtrée des arbres.
Entre transparence et intimité, le projet affirme une architecture douce et silencieuse, pensée comme un refuge au cœur de la nature.
LieuLanglade (30)
Maitre d'OuvragePrivée
MissionConception + PC
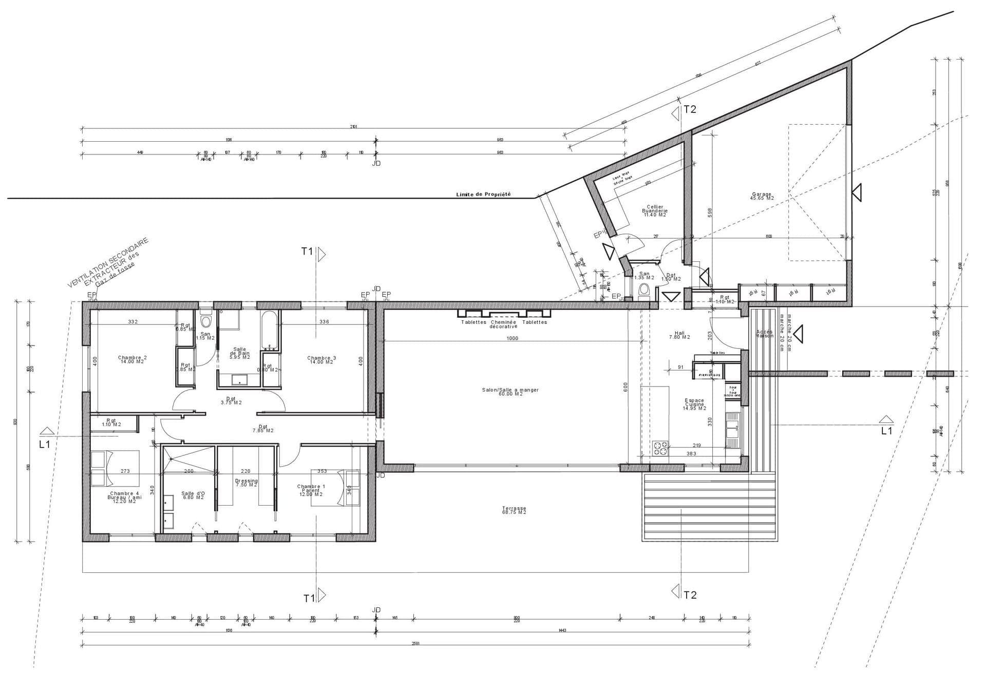
Surface193 m2
Année2014





