Entre la masse et la lumière, le projet cherche une tension juste.
Posée en surplomb du paysage, la maison s’ancre dans la pente par un soubassement en pierre qui dialogue avec la garrigue environnante.
Les volumes blancs, nets et horizontaux, semblent flottter au-dessus du socle, largement ouverts par de généreuses baies cadrant l’horizon.
Entre terrasse en bois et miroir d’eau, l’architecture compose un art de vivre méditerranéen, où matière, lumière et panorama ne font qu’un. Dans cette suspension, l’habiter devient contemplation.
LieuNîmes (30)
Maitre d'OuvragePrivée
MissionConception + PC
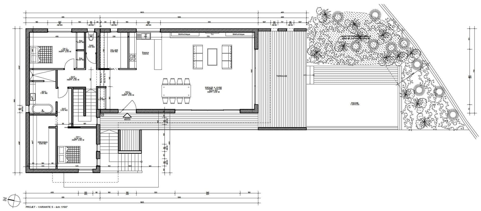
Surface191 m2
Année2012




