Ancrée dans un socle de pierre sèche, la maison émerge du paysage comme une extension naturelle du terrain, entre restanques et végétation méditerranéenne.
Pensée comme un cadran solaire, l’architecture répond à la lumière à chaque moment de la journée.
Les volumes enduits, sobres et lumineux, se superposent avec finesse, protégés par de larges débords qui filtrent le soleil et cadrent les vues.
Entre minéralité, ombre et lumière, le projet compose une architecture intemporelle, profondément enracinée dans son territoire.
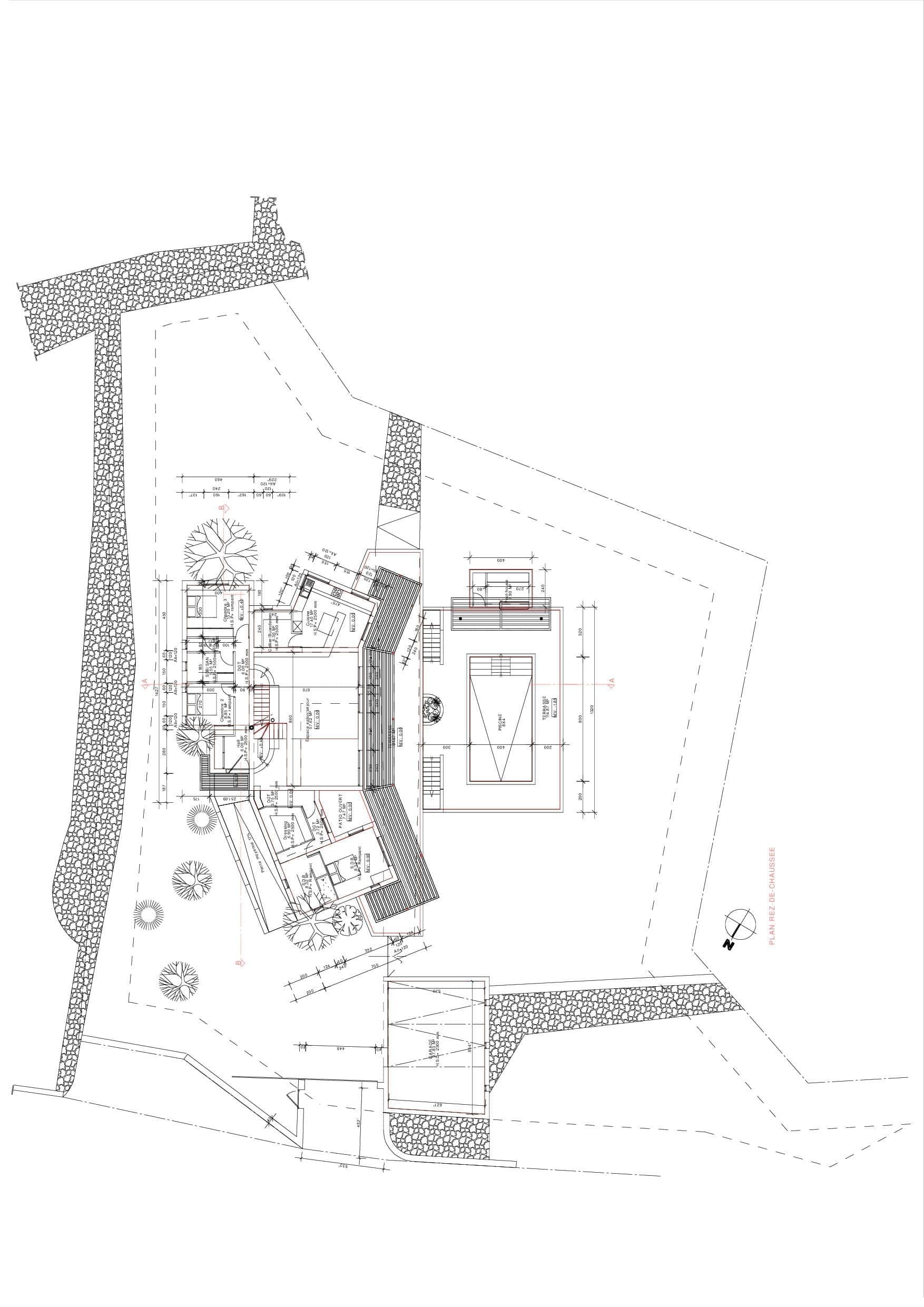
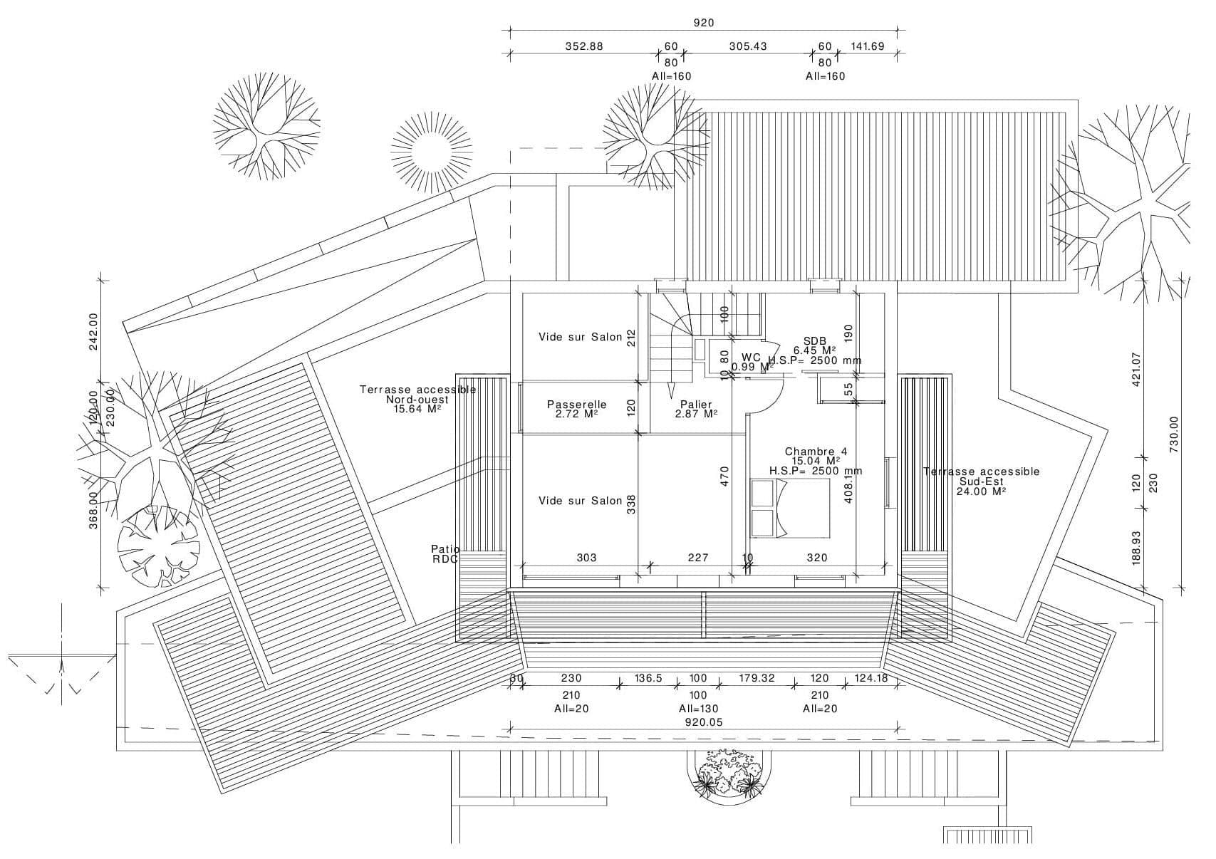
LieuNîmes (30)
Maitre d'OuvragePrivée
MissionConception + PC
Surface194 m2
Année2008






