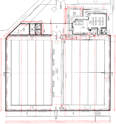
Le projet a consisté en la création d’une couverture du boulodrome actuel , la réhabilitation de ses aires de jeux ainsi que la création d’annexes (local de stockage et sanitaires).
Le projet situé au cœur d’un quartier « populaire » de Salon de Provence s’intègre dans un tissu urbain déjà en place. L’idée est de créer au travers du projet une façade urbaine en continuité avec l’existant.
Le projet est réalisé à partir d’une structure mixte bois et métal
LieuSalon de Provence (13)
Maitre d'OuvrageVille de Salon de Provence
MissionMandataire MOP+OPC
Surface1182 m2
Coût travaux633 000 € HT
Année2020-2021
Année2020-2021





